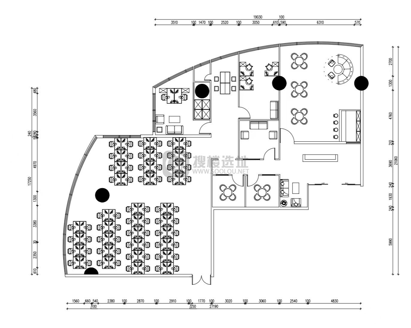
- 535㎡
- 建筑面积
- 54~77个工位
- 可容纳工位
-
标准交付
- 装修程度
微信扫码咨询
办公室概况
- 可注册 可注册
- 朝向 南北通透
- 免租期
- 最短租期 12个月
- 装修情况
标准交付
- 价格优势 4.10元/m²⋅
天 ,约
6.67 万元/月
- 面积信息 535㎡,使用率约70% ,可容纳工位54~77个
- 付款方式 押一付六
- 物业费 一期20元/平米/月,二期18元,三期24元
本楼盘平均租金
3.88元/m²⋅天
最低租金2.8元/m²⋅
天
最高租金4.5元/m²⋅
天
新地中心
- 2.8 元/m²⋅
天 起
- 竣工时间 2010年7月
- 车位数量 地下车位数1102,全天候从容泊车;350平米:1个车位
- 物业公司 青岛雅园物业管理有限公司南京分公司
- 在租户型 13个房源

在线咨询

电话咨询
025-66078937
(工作日 早8:00-晚21:00)

微信咨询