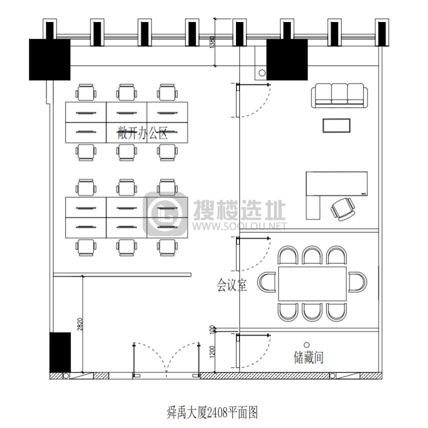
- 175㎡
- 建筑面积
- 18~25个工位
- 可容纳工位
-
精装
- 装修程度
微信扫码咨询
办公室概况
- 可注册 可注册
- 朝向 南北通透
- 免租期
- 最短租期 12个月
- 装修情况
精装
- 价格优势 3.20元/m²⋅
天 ,约
1.7 万元/月
- 面积信息 175㎡,使用率约70% ,可容纳工位18~25个
- 付款方式 押二付六
- 物业费 9.8元/㎡/月
本楼盘平均租金
3.19元/m²⋅天
最低租金2.8元/m²⋅
天
最高租金3.5元/m²⋅
天
舜禹大厦
- 2.8 元/m²⋅
天 起
- 竣工时间 2017年
- 车位数量 地下两层,共400个;地上地下均有新能源充电桩。
- 物业公司 上海上房物业
- 在租户型 10个房源

在线咨询

电话咨询
025-66078937
(工作日 早8:00-晚21:00)

微信咨询